
GreenMiningHouse

Grundstück Q1/2025
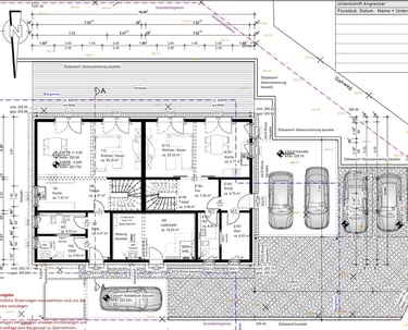
Unser Bauprojekt GreenMiningHouse entsteht in Viereth-Trunstadt, einer idyllischen Gemeinde mit guter Anbindung und naturnahem Umfeld. Das Grundstück bietet ausreichend Platz für unser nachhaltiges Haus und eine harmonische Gestaltung der Außenanlagen.Auf den Fotos haben wir aus Rücksicht auf die Privatsphäre unserer Nachbarn deren Häuser ausgespart, sodass der Fokus ganz auf unserem Grundstück und der geplanten Baufläche liegt.



Planung Q2/2025
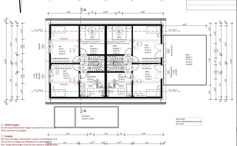
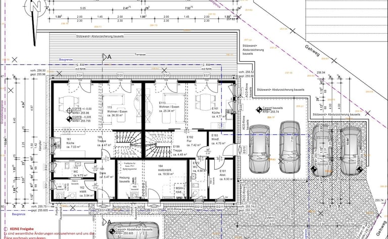
Die Planungsphase unseres GreenMiningHouse ist erfolgreich gestartet und die ersten Entwürfe sind bereits fertiggestellt. Unser Ziel ist es, ein modernes, nachhaltiges und energieeffizientes Zuhause zu schaffen, in dem zwei Familien ausreichend Platz finden.Die Entwürfe sehen ein durchdachtes Raumkonzept mit offenen, hellen Wohnbereichen vor und bieten gleichzeitig genügend Rückzugsorte für jede Familie. Wir setzen auf nachhaltige Baustoffe, energieeffiziente Technologien und innovative Lösungen, um ein zukunftsfähiges Wohnkonzept zu realisieren.





Heizungsanlage für das GreenMiningHouse Q3/Q4 2025
Auf Basis der Erfahrungen aus vier Jahren Mining mit verschiedenen Systemen wurde die Heizungsanlage für das GreenMiningHouse fertiggestellt. Während die Ämter die Pläne prüften und die Gemeinde die notwendigen Freigaben erteilte, entstand bereits das Herzstück des Hauses. Für den Betrieb im GreenMiningHouse kommt dabei ausschließlich Bitcoin-Mining in Frage. In dieser Zeit wurde die Anlage vollständig aufgebaut, montiert und auf dem Testfeld in Betrieb genommen.











